Goiko

Projects

Goiko

Castelldefels, Barcelona

Case study

2022

With restrictions and measures caused by COVID-19

88

between Spain and France

3.8 M

customers in 2020

4.5 M

burgers sold in 2020

540 K

followers on Instagram. The most followed restaurant brand in Spain

1150

workers in the company

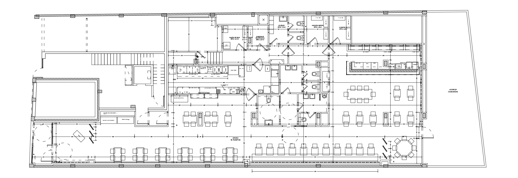
A new "ooze temple" comes to Castelldefels, in the province of Barcelona, where Goiko already has 17 establishments.

Goiko has teamed up with KIMAK to bring the concept of a gourmet hamburger restaurant of the highest quality to the public, something that is reflected in the materials used in the architecture and the custom-made furniture.

The Project

In the façade, the greatest possible transparency and visibility from the outside has been sought, eliminating architectural barriers and respecting the state of the building in which the premises are located.

In the interior, rustic materials such as wood, exposed brick or raw metal have been used, applied to the architecture and the furniture, which represent the artisan quality

of Goiko's culinary process and which add warmth to the atmosphere.

The bar stands out as an original element of the premises, for which rustic face brick has been used, laid in a herringbone pattern, an effect that gives a great sensation of depth and volume, reinforced by the raw metal structure that protects it.

Goiko

We haven't lowered the quality since we opened, we never will. We're only as good as the last burger that comes off the grill".

Andoni Goicoechea
Founder of Goiko

Technical details

Materials
#metal
#wood
#glass
#aluminium
#brick
#depoloyé
Ratings
#LARGE SCALE PROJECT
#CASE STUDY
Integrations
#LED

Project location

Tags

How can we help you?


Send