Goiko

Proyectos

Goiko

Castelldefels, Barcelona

Estudio del caso

Castelldefels, Barcelona

2022

Con restricciones y medidas por el COVID-19

88

Tiendas entre España y Francia

3.8 M

Clientes en 2020

4.5 M

Hamburguesas vendidas en 2020

540 K

Seguidores en Instagram. La marca de restaurante más seguida en España

1150

Trabajadores en la compañía

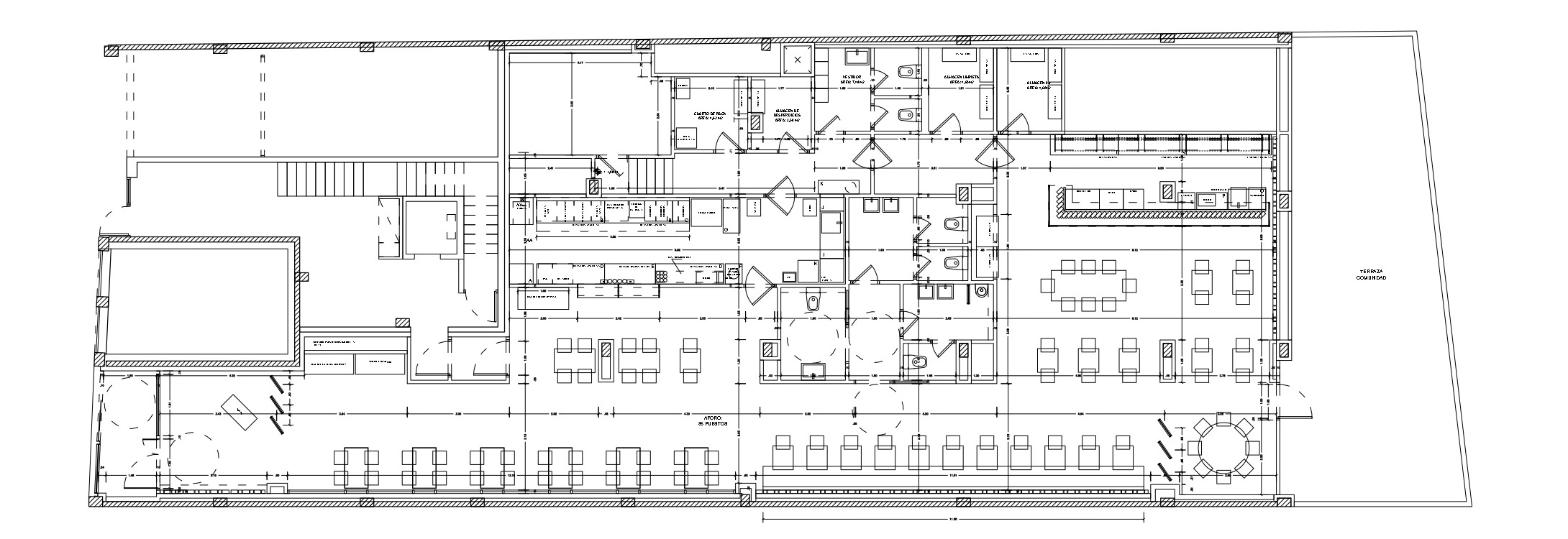
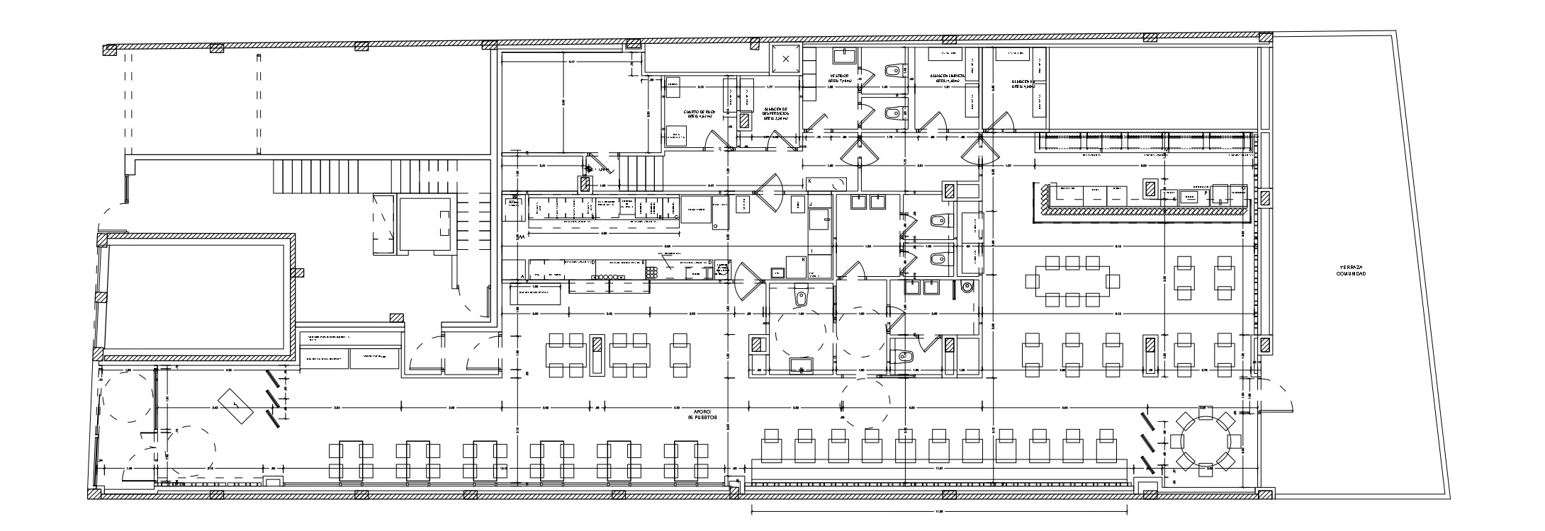
Un nuevo templo del chorreo llega a Castelldefels, en la provincia de Barcelona, en la que Goiko ya cuenta con 17 establecimientos.

Goiko se alía con KIMAK para acercar al público el concepto de hamburguesería gourmet de la más alta calidad, algo que se traslada a los materiales aplicados en la arquitectura y el mobiliario fabricado a medida.

El proyecto

Se ha buscado en fachada la mayor transparencia y visibilidad posible desde el exterior, eliminando barreras arquitectónicas y respetando el estado del edificio en el que se ubica el local. 

En el interior, se han utilizado materiales rústicos tales como madera, ladrillo cara vista o metal crudo, aplicados a la arquitectura y al mobiliario, que representan la cualidad

artesanal del proceso culinario de Goiko y que aportan calidez al ambiente.

Destaca la barra como elemento original del local, para la que se ha utilizado ladrillo cara vista rústico colocado en aparejo de espiga, efecto que aporta una gran sensación de profundidad y volumen reforzado por la estructura metálica cruda que la protege.

Goiko

No hemos bajado la calidad desde que abrimos, nunca lo haremos. Somos tan buenos como la última burger que sale de la parrilla."

Andoni Goicoechea
Fundador de Goiko

Technical details

Materials
#METAL
#WOOD
#GLASS
#ALUMINIUM
#BRICK
#DEPLOYÉE
Ratings
#LARGE SCALE PROJECT
#CASE STUDY
Integrations
#LED

Project location

Tags

¿Cómo podemos ayudarte?


Enviar