INDITEX HQ NEW OFFICES

Proyectos

INDITEX HQ NEW OFFICES

Arteixo, A Coruña

Estudio del caso

Oficinas centrales

2018

Año de finalización

30

Años trabajando juntos

3

Nuevos edificios

5,500 m²

De superficie de vidrio

70,000 m²

Se suman al complejo

500

Asientos en el auditorio

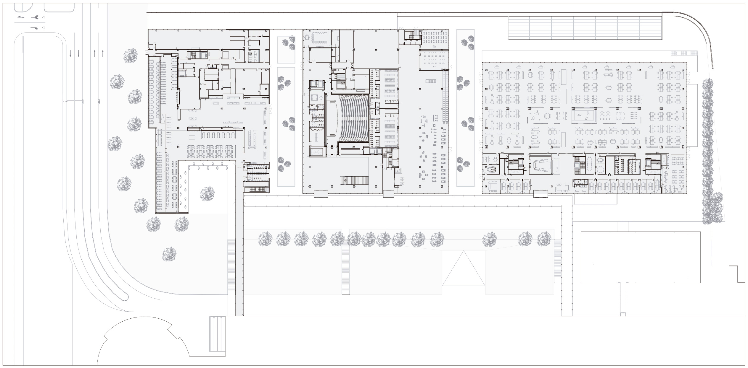
La sede central del Grupo Inditex, propietaria de las cadenas de moda Zara, Zara Home, Pull&Bear, Massimo Dutti, Bershka, Uterqüe, Oysho y Stradivarius, amplía sus instalaciones en Arteixo. Como una extensión del edificio ya existente, dos pasarelas cubiertas conectan por el exterior las tres nuevas construcciones.

 

Un basamento rectangular de grandes dimensiones alberga el aparcamiento subterráneo y da lugar a la distribución de las tres nuevas edificaciones en planta, que acogen un diverso programa de usos: un restaurante, un auditorio, un gimnasio y las oficinas del departamento de IT. Todo desde una visión enfocada al cuidado del entorno y el medio ambiente.

El proyecto

En el primero de los edificios se encuentra el restaurante, en el que KIMAK ha colocado vidrios en fachada de hasta seis metros de altura y un lucernario que corona la cantina y permite la entrada de una gran cantidad de luz natural. El espacio se concibe como un lugar donde cuidarse, con menús de km0, ecológicos y saludables, con una amplia visión del exterior que te permite estar en contacto con la naturaleza.

El segundo edificio, de planta cuadrada y situado en el centro, aloja un gran auditorio con capacidad para 500 personas y la pantalla LED más grande de Europa en el momento de su inauguración. Se han utilizado los más innovadores sistemas audiovisuales y dispone de cinco cabinas de traducción simultánea. En este mismo edificio se ha realizado también un gimnasio para el

disfrute de los empleados, abierto a los laterales en los que se ha colocado vegetación natural. Todo esto se envuelve con una fachada de muro cortina fabricada e instalada por KIMAK, que aligera visualmente el peso de una compacta construcción. En el interior realizamos los revestimientos de los pilares estructurales y la totalidad de las carpinterías metálicas.

El tercer edificio se ha destinado a las oficinas del departamento de IT, con unas características muy similares al segundo pero con una planta más rectangular y alargada. 

Se han colocado en total 5.500 m² de vidrio entre fachadas y acristalamientos interiores en un tiempo muy ajustado, algo que KIMAK pudo resolver gracias a su capacidad de fabricación interna.

INDITEX HQ NEW OFFICES

La arquitectura tecnológica plenamente adaptada a las necesidades de flexibilidad de nuestro modelo de negocio."

Pablo Isla
Presidente de Inditex

Technical details

Technologies
#CLADDING
#CURTAIN WALL
Materials
#GLASS
#STEEL
#ALUMINIUM
#STAINLESSTEEL
Ratings
#GREENBUILDING
Integrations
#LED

Project location

Tags

¿Cómo podemos ayudarte?


Enviar